| Shoreline Drive Residence | |
|
Marilyn Miller Farmer, AIA, LEED AP
JoAnn Grover Davila Parker-Garcia Wojtek Szczerba Craig Dobbs, Engineer |
|
|
||||||||||||||||||||||||||||||||||||||||||||||||||||||||||||||||||||||||||||||||||||||||
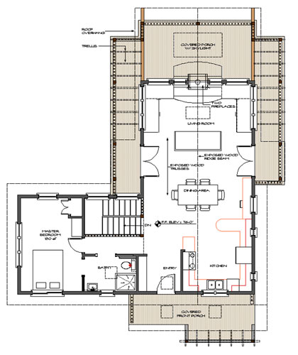
| A 1500 s.f. family vacation/entertainment home on a steep, oak studded site with access and view of Lake Nacimiento. Family gathering in the great room includes and open kitchen, dinning and wrap around desk with double sided fireplace as focus and spectacular views of surrounding natural terrain including oak trees and lake. Lower floor includes sleeping/sun porch, bedrooms, bath, laundry and access to outdoor shower nestled in the trees. | ||||||||||||||||||||||||||||||||||||||||||||||||||||||||||||||||||||||||||||||||||||||||
|
||||||||||||||||||||||||||||||||||||||||||||||||||||||||||||||||||||||||||||||||||||||||
Habitat | Residential | Non-residential | Planning | Jewelry | Furniture | Contact |
||||||||||||||||||||||||||||||||||||||||||||||||||||||||||||||||||||||||||||||||||||||||