| Bahia Court New Residence | |
|
Marilyn Miller Farmer, AIA, LEED AP
|
|
|
||||||||||||||||||||||||||||||||||||||||||||||||||||||||||||||||||||||||||||||||||||||||||||||
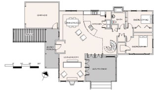
| Contemporary, flexible, open plan passive solar design maximizes views to east and south. Tucked into a secluded city lot adjacent to a creek and open hills, this design maximizes interior and exterior solar access while preserving existing fruit and oak trees. | ||||||||||||||||||||||||||||||||||||||||||||||||||||||||||||||||||||||||||||||||||||||||||||||
|
||||||||||||||||||||||||||||||||||||||||||||||||||||||||||||||||||||||||||||||||||||||||||||||
Habitat | Residential | Non-residential | Planning | Jewelry | Furniture | Contact |
||||||||||||||||||||||||||||||||||||||||||||||||||||||||||||||||||||||||||||||||||||||||||||||